Paulus Sykehjem
Third year | second semester
Individual project
Supervised by; Marianne Borge &
Andreas Kalstveit
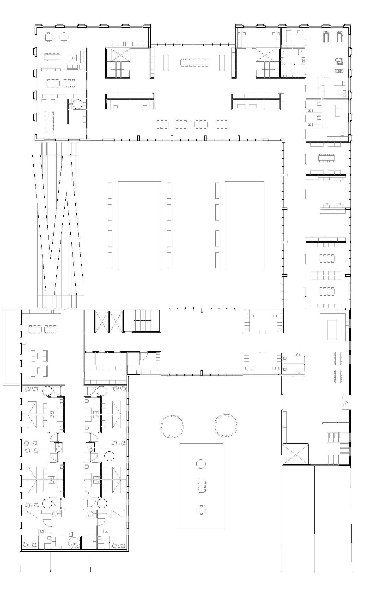
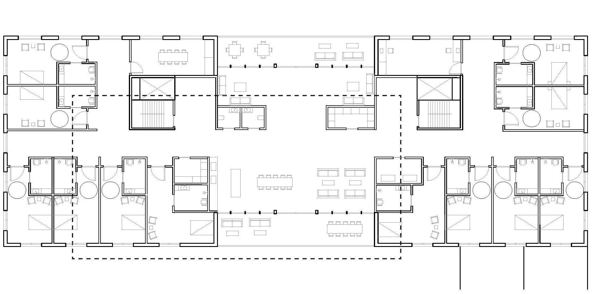
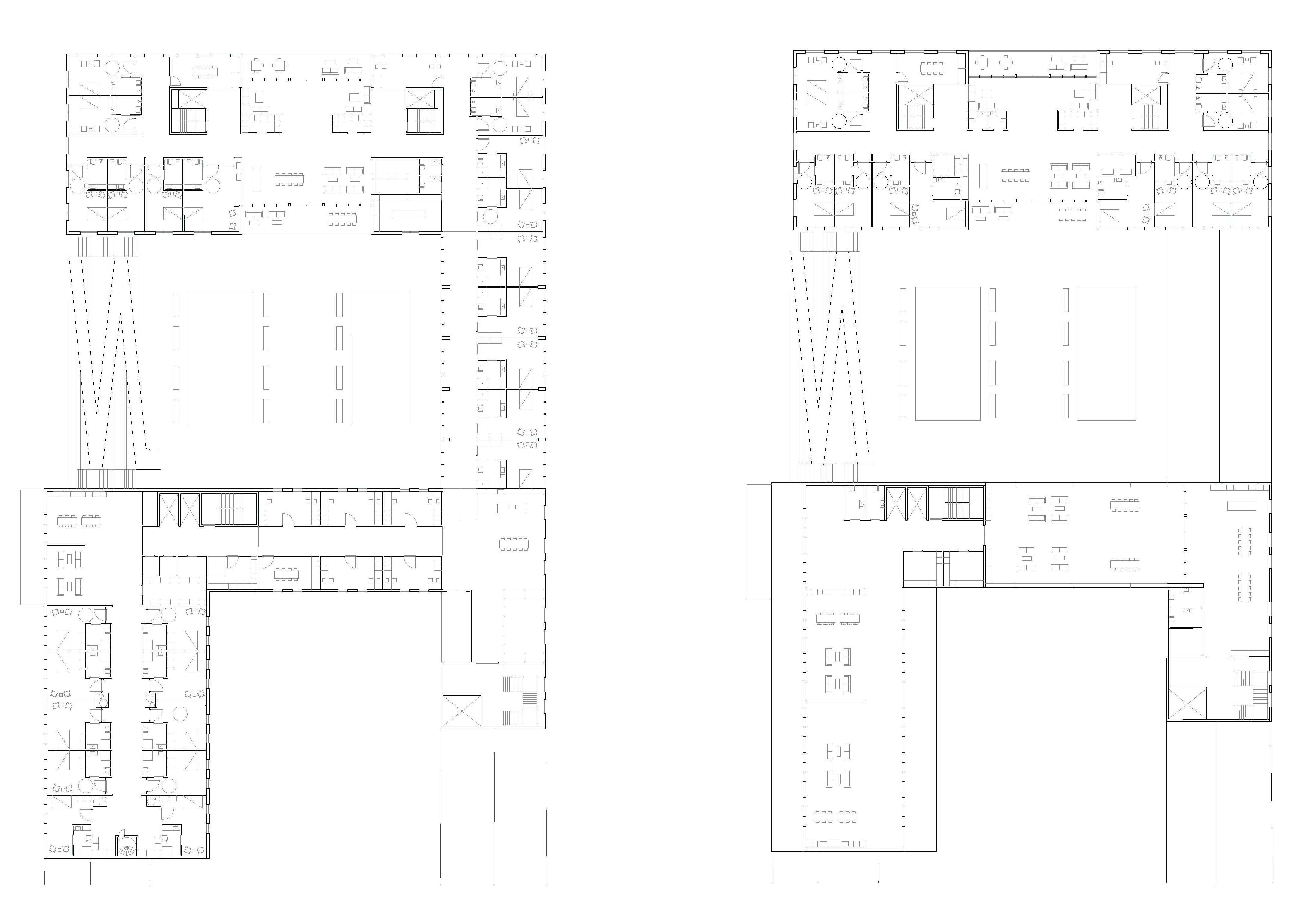
The project centers on the restoration and transformation of the existing Paulus nursing home, while the adjacent antiques building is removed to make space for a new extension. The new volume fronts Sannergata and is connected to the historic structure via a three-storey passage. This creates an elevated, sheltered courtyard that ensures access to daylight and open views for residents and visitors alike. Together, the two buildings accommodate 138 resident rooms.
A key architectural move has been to enable natural light to pass through the entire structure, supporting openness and well-being. The second floor of the new building aligns with the first floor of the original, allowing for a seamless internal flow. A central ambition has been to establish a vibrant meeting place for seniors in the local community, with generous shared spaces on the second floor designed for activity, treatment, and social interaction.
The lower floors feature a robust concrete façade that grounds the building in the urban streetscape, housing a café and day center. The upper floors are clad in brick with red-pigmented concrete bands, and all resident rooms are equipped with french balconies and external blinds for sun protection.

















.png)

.jpg)

