Jakob Kaasen
Architecture Portfolio
Projects
| About
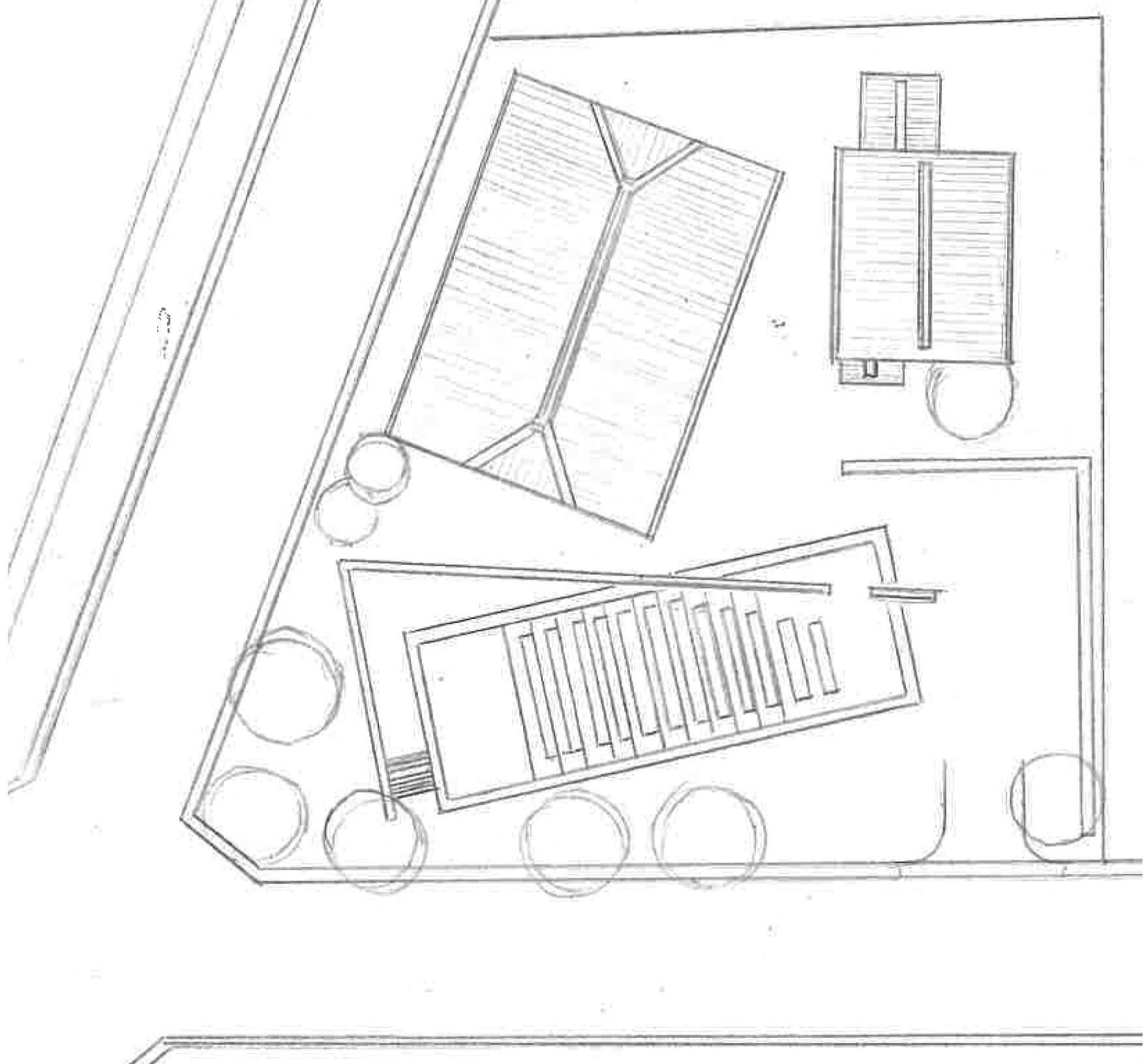
Paulus Sykehjem
Kolsås
The Offcut Sauna
Byhagen
Maridalsveien 31 C
Thereses Gate 1A
Cabin Beitostølen
Multisensory Architecture
Church of Light | Tadao Ando